当前位置: 首页 > 原创案例 > 方案作品

垫江农村自建别墅

  • 小区名称

  • 垫江农村自建别墅

  • 案例风格

  • 东南亚

  • 案例户型

  • 联排

  • 案例面积

  • 300㎡-500㎡

  • 服务店面

  • 本案设计师

  • 天古装饰

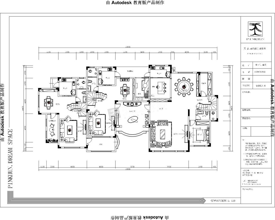
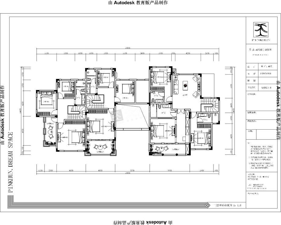
此案是垫江·澄溪农村自建别墅装修设计规划,业主是一家三兄弟,对生活品质要求非常高。别墅户型原始为两层,楼外观采用西班牙风格;西班牙风格有很强烈的地中海风格,热情洋溢、自由奔放、色彩绚丽。不需要讲究太多的技巧,而是保持简单的信念,捕捉光线、取材于自然,大胆而自由地运用色彩、造型。

原始户型楼梯的位置非常占用空间,觉得很小气,完全没有浪费了大量的空间。设计师对整套别墅做采光、通风、户型结构做出大量的整改。


东南亚风格的装饰接近大自然的设计,深受现在业主的喜爱。鲜艳的色彩,原木的家居,布艺的装饰,独特区域风格的装饰品,整体效果让我们在享受自然的同时也在享受异域的风情,拥有惬意舒适的家居生活。


客厅以大气优雅为主,纯木色的电视柜加上墙面大理石的装饰造型,以木质格栅分割客厅与阳台的空间,代替一切繁杂与装饰。设计以不矫揉造作的材料营造出豪华感,使人感到既创新独特又似曾相识的生活居所。

累计已有2583位业主申请服务

X
  • 您的户型类型:
  • 您此套房子的居住倾向(可多选)
  • 您的年龄:
  • 您所需要的房间数为:
  • 您所需要的房间类型为(可多选)
  • 您家小孩年龄(可多选)
  • 您喜欢的家居风格(可多选)
  • 您喜欢的生活色调(可多选)
  • 您需要的个性化功能区(可多选)
  • 您对房屋装修使用材质的选择(可多选)
  • 您对装修更看重哪方面(可多选)
  • 希望配套以下哪些系统设备(可多选)
  • 您对拎包入住的整体资金预算区间:
  • 您对房屋装修方式的倾向:
  • 您对设计师的安排要求(可多选)
  • 您的建议或要求(或者特殊说明):
  • 姓名:
    电话:
    楼盘:
    面积:

设计师

预约尊享贵宾体验

设计师登录重庆天古装饰艺术设计工程有限公司©版权所有   渝公安备案 50010302000295号    渝ICP备12001551号-1

在线
咨询

快速
报价

免费
方案

装修
预约

×

装修要花多少钱?提前算一算 累计已有16799位业主获得报价

房屋面积:*
房屋户型:*
您的姓名:*
您的手机:*
*为了您的权益,您的信息将被严格保密

您家的装修预算118635

根据工程量不同您的基础装修造价约为

基装造价区间:

*因设计风格及工程量不同,具体报价以装修量房实测为准
为了给您更准确的报价,天古装饰的专业人员将向您致电了解具体装修需求,请您注意接听,谢谢!

在线人工报价

预约天古装饰

X

*为了您的权益,您的信息将被严格保密

x

预约即送专属好礼

*本活动最终解释权归天古装饰所有

X

或拨打咨询热线023-63513611了解详情

提示:天古装饰向您承诺,您的个人隐私我们会严格保密!